产品中心

DFB4/7.5矿用隔爆型电磁阀

 
 
 一、主 要 用 途
  DFB4/7.5矿用隔爆型电磁阀(以下简称电磁阀)是适用于可在周围空气中的甲烷、煤尘、硫化氢、二氧化碳等不超过《煤矿安全规程》中所规定的安全含量的矿井中使用,能作为井下自动及其它管路中控制全开或全闭之用,与系统控制设备配合构成带式输送机控制系统。
 
 二、使用环境条件
  电磁阀在下列条件下应能可靠工作:
  a、环境温度-10~+40℃;
  b、平均相对湿度不大于95%(+25℃时);
  c、大气压力:80~106KPa;
  d、无显著振动和冲击的场合;
  e、煤矿井下有甲烷、煤尘等爆炸性混合物,但无破坏绝缘的腐蚀性气体的场合;
 
 三、防 爆 型 式
  a、防爆型式:矿用隔爆型;
  b、防爆标志 “Ex db I Mb”;
  c、分类:常闭式。
 
 四、型 号 含 义
五、外形尺寸、重量及安装尺寸
  本电磁阀分为上部阀体与下部阀座两部分结构,上部阀体为园筒形结构,内部有电磁体,作为控制阀门开闭的动力源,下部阀座内有导水阀口,过滤器等部件,其中过滤器能有效阻挡直径大于1m m的有害杂质通过,这样既可避免喷头易堵塞,又降低了矿工人员的劳动强度。其工作原理是:未通电时,阀芯为初始态,导水阀口关闭,水不能流通,通电之后,在电磁效应的作用下,电磁体能产生足够的推力,克服水的压力,使阀芯脱离水阀口,水即流通。本电磁阀作为水、油、乳化液以及粘度小、无悬浮物的液体管路中控制全开、全闭之用。
 
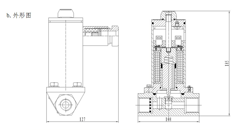
 六、外 形 图
  a、外形尺寸(长×宽×高):108mm×127mm×185mm 重量 :约3.5Kg;
  b、外形图:
 
 七、技 术 数 据
  a、额定电压:应符合MT/T715-1997第4.6条规定,具体见表1

  b、电压适应范围:供电电压在额定电压的80%~120%范围内波动能正常工作;
  c、密封性:在1.1倍最高水压下无泄漏。
  d、电磁阀公称通径与水压适应范围和外接管路尺寸关系应符合MT/T715-1997第4.5条规定,具体见表2
 
 八、故障及排除办法
 



新闻中心

  • 正在建设中...

联系我们

CONTACT US

联系人:周总

手机:13601995640

电话:0513-83313652 

邮箱:640809420@qq.com

地址:启东科技创业园跃龙路36号